







































































5-Bedroom Villa in Torrevieja
Features
Features
Description
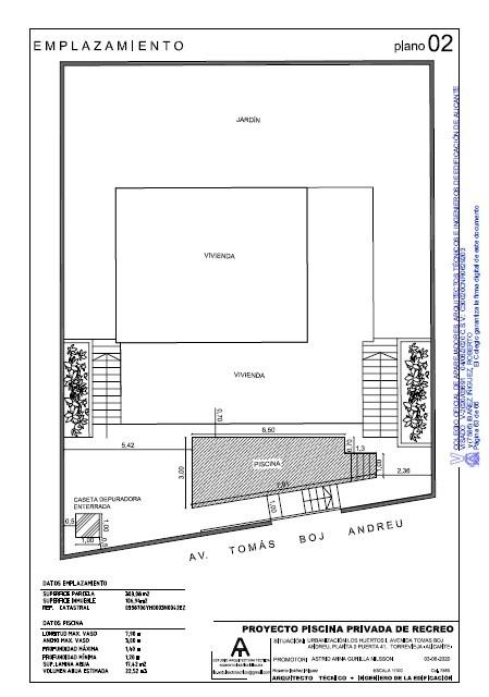
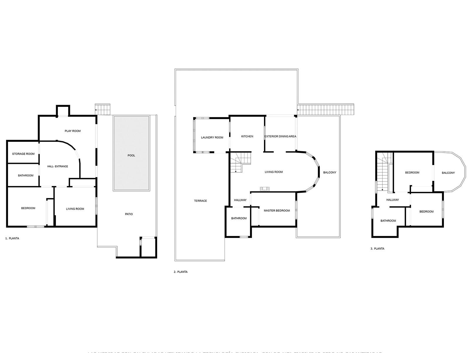
This exclusive independent Mediterranean-style villa is located in the serene urbanization of Los Altos, Torrevieja. Offering stunning sea views, a private saltwater pool, and elegant architectural design, this property provides an ideal combination of comfort, privacy, and accessibility. Situated on a 330 m² plot with a built area of 131 m², the villa is perfect for families or those seeking a luxurious retreat on the Costa Blanca.~The villa features five spacious bedrooms and three bathrooms distributed across three levels. On the ground floor, you’ll find a bright living room with access to terraces and relaxation areas, a fully equipped independent kitchen with a laundry area, one bedroom, and a bathroom with a shower. The upper floor offers two bedrooms, a full bathroom with a bathtub, and a terrace with clear views. The semi-basement includes two additional bedrooms ideal for guests, a leisure area, another full bathroom with a bathtub, a storage room, and a tool area. This level also provides direct access to the private saltwater pool and an outdoor terrace with a fireplace.~The property boasts several terraces for enjoying the Mediterranean sun and outdoor living. It is sold fully furnished and includes access to communal facilities such as a pool. Its prime location ensures excellent connectivity to nearby beaches like Punta Prima, shopping centers such as La Zenia Boulevard and Habaneras, schools, supermarkets, and restaurants. Additionally, it offers easy access to major roads like the AP-7 and N-332, linking Torrevieja to Alicante Airport.~Location: Los Altos, Torrevieja~Layout: 5 bedrooms | 3 bathrooms | Private saltwater pool | Multiple terraces~Condition: Fully furnished | Ready to move in~~About the Location:~Los Altos is one of Torrevieja’s most sought-after urbanizations due to its proximity to Blue Flag beaches, golf courses like Villamartín Golf Club, and essential services. The area offers tranquility while being close to vibrant amenities such as shopping malls and international restaurants. Its strategic location near natural parks like Las Lagunas de La Mata adds to its charm.~~Get in Touch:~Don’t miss this unique opportunity to own an exceptional villa in Los Balcones! Contact us today for more information or to schedule your visit—we look forward to helping you find your dream property.
Location
Torrevieja, Costa Blanca
Spain
Loading Map...
Contact Agent
Request Information
Price
Similar Properties
You might also be interested in Torrevieja?
Similar Properties